使用耐水石墨,水套石墨可以有效地进行HCl处理,从而可以生产并保证精确的温度控制和最佳的反应条件。
货号 :
SSL订单(最小起订量) :
1支付 :
Alipay PayPal westernunion T/T L/C产品产地 :
China颜色 :
Customized装运港口 :
shanghai shenzhen guangzhou交货时间 :
please contact 504893184@qq.com or CP +8613696510409包裹 :
Customized材料 :
Graphite工作温度 :
Export≤45℃,Graphite wall≤170℃水套式石墨氯化氢合成炉
它由钢壳、石墨炉盖、合成材料筒体和炉底组成。与钢壳炉相比,它具有以下几个优点:
1. 使用寿命长(通常超过十年);
2. 产品酸纯度高;
3. 良好的工作条件,易于控制和管理。
产品优势
水套式石墨氯化氢合成炉具有卓越的耐腐蚀性、高效的传热性能、稳定的温度控制和长久的耐用性。其坚固的结构确保了在严苛的化学环境下也能可靠运行,从而安全、稳定、高效地生产氯化氢,且维护需求极低。
结构图
| 零件详情 | |
| 1 | 防爆端口 |
| 2 | 冷却水出口 |
| 3 | 冷却出口 |
| 4 | HCl出口 |
| 5 | 石墨合成圆柱体 |
| 6 | 炉门 |
| 7 | 冷却水入口 |
| 8 | 镜子 |
| 9 | 三套石英玻璃燃烧器 |
| 10 | 镜子 |
| 11 | 排水口 |
| 12 | 酸出口 |
| 13 | 氯气入口 |
| 14 | 氢气入口 |
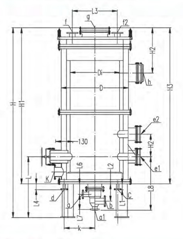
喷嘴参数表

| 象征 | a | b | c | d | e | f | g | h | k |
| 规格 | DN/D1 | DN/D1 | DN | DN | DN | DN | DN | DN/D1 | DN |
| SSL-300 | 40/125 | 40/125 | 20 | 50 | 125 | 80 | 250 | 75/180 | 40 |
| SSL-400 | 55/145 | 55/145 | 20 | 50 | 125 | 100 | 250 | 100/210 | 50 |
| SSL-500 | 70/180 | 70/180 | 20 | 50 | 125 | 125 | 250 | 125/240 | 65 |
| SSL-600 | 84/210 | 84/210 | 20 | 50 | 125 | 150 | 400 | 150/295 | 80 |
| SSL-700 | 100/210 | 100/210 | 20 | 50 | 125 | 200 | 400 | 200/350 | 100 |
| SSL-800 | 115/240 | 115/240 | 20 | 50 | 125 | 200 | 400 | 200/350 | 100 |
| SSL-900 | 115/240 | 115/240 | 20 | 50 | 125 | 200 | 400 | 250/400 | 125 |
| SSL-1000 | 115/240 | 115/240 | 20 | 50 | 125 | 200 | 400 | 250/400 | 150 |
| 喷嘴 连接标准 |
HG 20593 | HG 20593 | - | HG 20593 | - | HG 20593 | - | - | HG 20593 |
| 压力水平 兆帕 |
1.0 | 1.0 | - | 1.0 | - | 1.0 | - | 1.0 | 1.0 |
| 喷嘴使用 | 氢气入口 | 氢气入口 | 酸出口 | 排气口 | 镜像端口 | 出水口 | 防爆端口 | 氢化氢气出口 | 冷却水入口 |